国外公司采购户外防水配电箱 -- 20231023
户外 防水配 电箱
国外公司采购户外防水配电箱
具体要求请联系张小姐:
Lynne
Tel,WeChat:13530128923
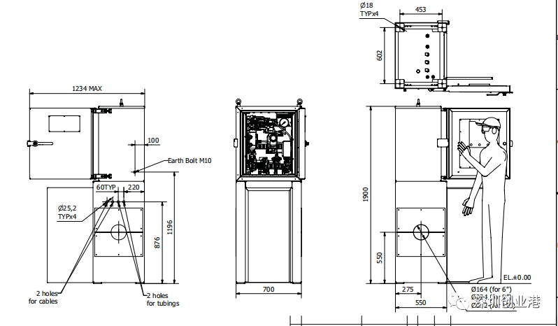
用于以色列户外,
所以防雨水是基本,做盒子即可,
内部配件电线啥的不做,
数量前期是3套。
材质SS304无需喷涂,
顶部柜体配有 60 毫米陶瓷纤维绝缘板,
密度 - 128 千克/立方米。

更多采购请见深圳创业港www.szcyg.org
户外 防水配 电箱
国外公司采购户外防水配电箱
具体要求请联系张小姐:
Lynne
Tel,WeChat:13530128923
用于以色列户外,
所以防雨水是基本,做盒子即可,
内部配件电线啥的不做,
数量前期是3套。
材质SS304无需喷涂,
顶部柜体配有 60 毫米陶瓷纤维绝缘板,
密度 - 128 千克/立方米。

更多采购请见深圳创业港www.szcyg.org
keywords: 深圳创业港 深圳创业 联系:info@szcyg.org